Пресня-сити
Создание премиум дизайна для квартиры 50 м²
в ЖК «Пресня сити» в центре Москвы
Этот проект – маленький оазис в центре городской суеты.
Для желающих выдохнуть и расслабиться.
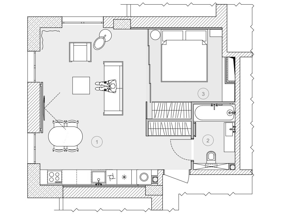
Эстетичная студия с зонированием и удобным функционалом.
Небольшая вместительная кухня со светлыми цветами и большим количеством дневного света.
Прихожая квартиры обособлена от кухонной зоны почти воздушными реечными перегородками.
Особый акцент и элегантное зонирование.
В гостиной мы разместили удобный большой диван и телевизор на арт-стене.
Заказчик может наслаждаться приятным просмотром фильма и красотой вокруг.
Пол в основной части квартиры мы сделали из качественной натуральной доски.
А на оконных откосах и в ванной – керамогранит.
Локация
г. Москва, Пресня Сити
Площадь
50 м²
Год постройки
2019
Спальня
В современное время удобно совмещать кухню и гостиную, в этом проекте так и сделали.
Особая приятная черта проекта – спальня, спрятанная за стеклянной перегородкой.
В нишу квартиры мы расположили комфортную кровать. А саму зону спальни ограничили полупрозрачной перегородкой.
Это дало светлое и уединённое пространство с минималистичным дизайном стен и мебели.
Ванная
Санузел получился прекрасным и воздушным.
В шкаф мы разместили инсталляцию для удобного хранения вещей.
Белая раковина словно в воздухе висит, на столешнице и без мебели.
Большое зеркало на стене расширило пространство комнаты и улучшило освещение.
Рассчитайте стоимость вашего проекта