О студии
Работы
Услуги
Цены
Вопрос-ответ
Контакты
О студии
Работы
Услуги
Цены
Вопрос-ответ
Контакты
Пестово
Премиум дизайн для частного дома 520 м²
Заказать аналогичный проект
Здесь у нас сложилось полное
взаимопонимание с заказчиком.
Локация
Московская область
Площадь
520 м²
Год постройки
2019
Локация
Московская область
Площадь
520 м²
Год постройки
2019
Локация
Московская область
Площадь
520 м²
Год постройки
2019
1 этаж
2 этаж
Цоколь
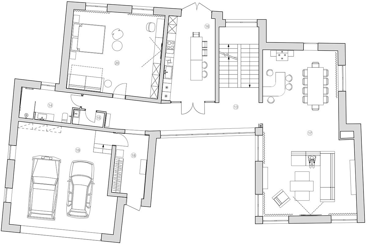
1 этаж
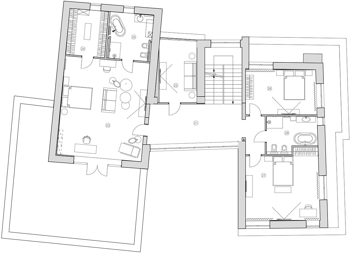
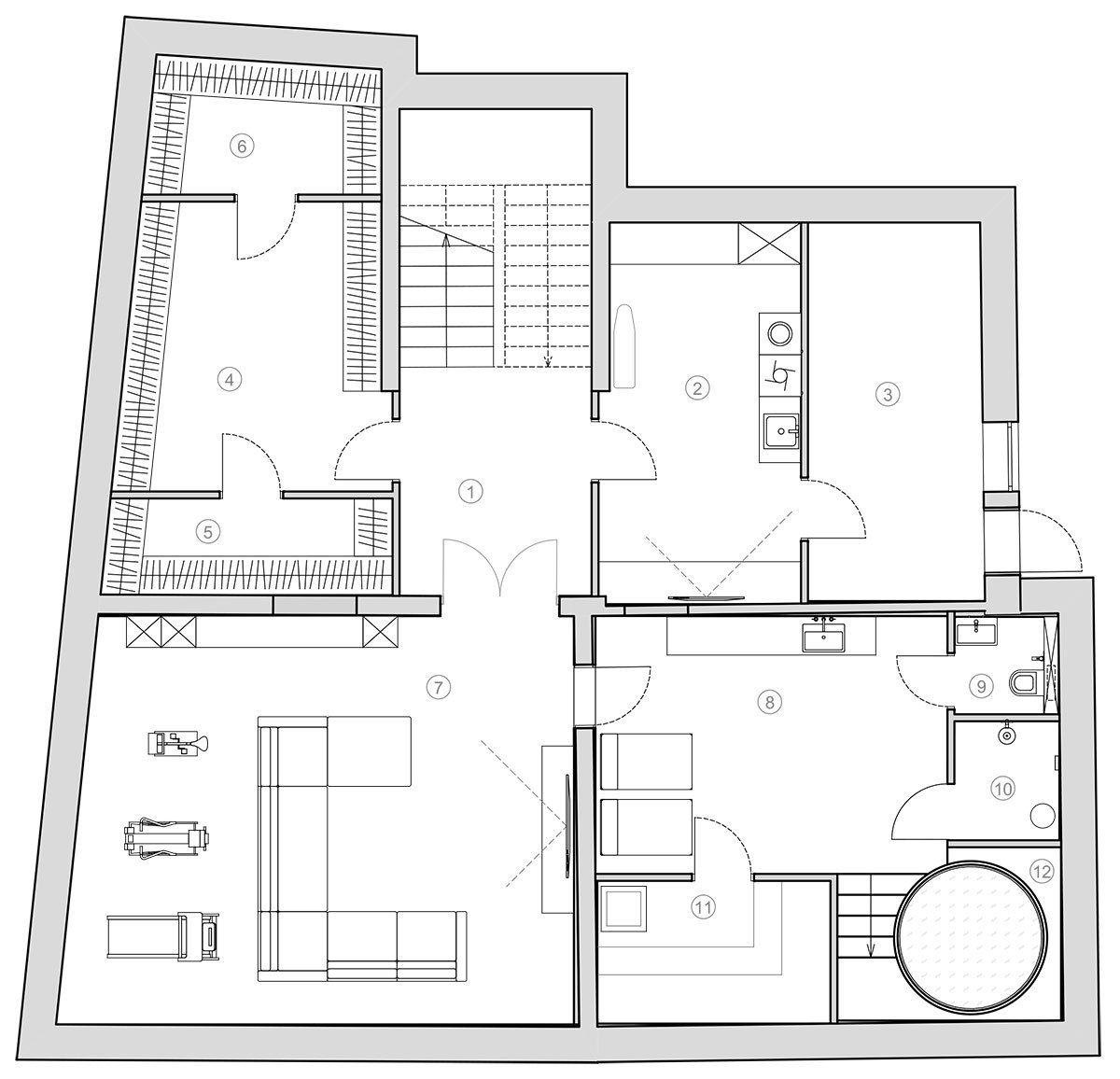
2 этаж
Цоколь
Гостиная
Холл - прихожая
Гостевая ванная
Гостевая Спальня
Детская ванная
Детская комната
Хозяйская ванная
спальни
Цоколь
3-й этаж
Фасады
Рассчитайте стоимость вашего проекта
Перейти к расчету
Предыдущий проект
Следующий проект