Greenline

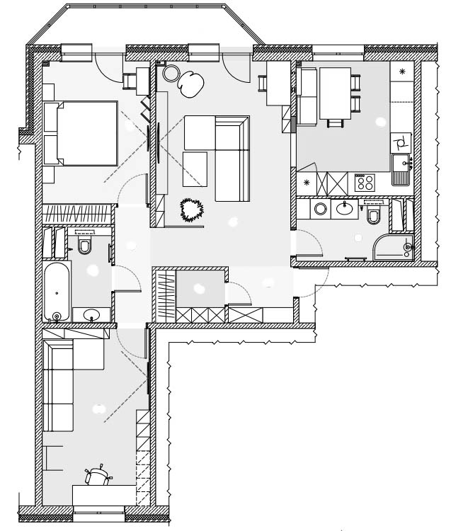
Гостиная, кабинет, детская, спальня, гардеробная, два санузла, кухня — в средней по площади квартире!

Коридорная зона отделена легкой стеклянной перегородкой, благодаря чему просторная гостиная ощущается приватной зоной релакса. Гостевой санузел, скрытый за дверь, окрашенную в цвет стен.
Объемная кухня без традиционных верхних ящиков, с припрятанными шкафами и углубленной рабочей поверхностью.
Спальня для мальчика на перспективу взросления — система хранения, переходящая в большой стол, и спальное место с диваном и кроватью благодаря системе-трансформер.
Органичный кабинет без отдельного помещения — рабочий стол и стеллажи в гостиной.
В спальне удобная большая кровать, женский туалетный столик, незаметные шкафы и арт-объект с телевизором.

Во всей квартире очень много мебели-трансформеров и невидимок в современном исполнении. Реализована идея некоторого сокрытия. Гардеробная спрятана, двери тоже не бросаются в глаза, кабинет внедрен в гостиную. В спальне шкафы выглядят как покрашенная стена, в детском диване таится кровать. Достаточно большая часть квартиры скрыта от прямого взгляда — функционально и гармонично.
Локация
г. Москва
Площадь
95 м²
Год постройки
2018
Кухня и гостинная
Спальня
Детская
Рассчитайте стоимость вашего проекта